4631 Bowen Bayou Road $749,000
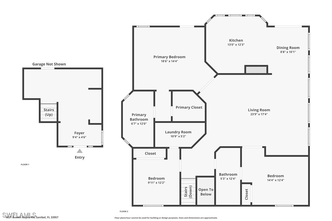
Welcome to this charming 3-bedroom, 2-bathroom elevated home located in the serene Sanibel Bayous neighborhood. Perfect for nature lovers, this property offers stunning views overlooking the bayous, teeming with wildlife, and provides a peaceful treehouse-like atmosphere surrounded by lush tropical vegetation. Inside, you'll find vinyl flooring throughout, adding a modern touch to the cozy interior. The updated kitchen features granite countertops and a colorful, custom tile backsplash that creates a lively focal point. The home boasts a new roof, ensuring peace of mind for years to come. Both the kitchen and primary bedroom offer access to a spacious deck—ideal for grilling, entertaining, or simply enjoying the sights and sounds of island life while overlooking the bayous. Whether you're relaxing with a cup of coffee or hosting friends and family, this outdoor space is perfect for enjoying the natural beauty of Sanibel. With deeded beach access just a short walk away, you'll be able to easily enjoy the island’s beautiful shores. Located just a short distance from the renowned Bowman's Beach and a variety of island amenities, this home combines tranquility and convenience for the ultimate island lifestyle. Don’t miss the chance to call this nature-filled retreat your own!
General Amenities
Interior Amenities
Exterior Amenities
Landscape Amenities
Community Amenities
Appliance Amenities
- Beds
- 3
- Baths
- 2.00
- Ft2
- 1,552
- Lot Acres
- 0.60
- Year Built
- 1990
- Cooling
- CentralAir,CeilingFans,Electric
- Roof
- Shingle
Virtual Tour
4631 Bowen Bayou Road
Sanibel, Florida 33957
United States
Sanibel, Florida 33957
United States
Subdivision: SANIBEL BAYOUS
County: Lee
Sale Type: For Sale
Ref #: 225019836
Listed by Pfeifer Realty Group LLC [For Sale]
- Beds
- 3
- Baths
- 2.00
- Ft2
- 1,552
- Lot Acres
- 0.60
- Heat
- Central,Electric
- Cooling
- CentralAir,CeilingFans,Electric
- Roof
- Shingle
- Year Built
- 1990
- Frontage
- Yes
- Beds
- 3
- Baths
- 2.00
- Ft2
- 1,552
- Lot Acres
- 0.60
- Year Built
- 1990
- Cooling
- CentralAir,CeilingFans,Electric
- Roof
- Shingle
Virtual Tour
4631 Bowen Bayou Road
Sanibel, Florida 33957
United States
Sanibel, Florida 33957
United States
Subdivision: SANIBEL BAYOUS
County: Lee
Sale Type: For Sale
Ref #: 225019836
Listed by Pfeifer Realty Group LLC [For Sale]
